
This equipment is primarily designed for dry and wet screening of coal, minerals, and sand and gravel aggregates, serving functions such as classification, de-mediuming, desliming, and dewatering. Different specifications and models can be selected based on specific applications and processing capacities to meet the production needs of various types of mines and coal preparation plants.
Banana screens are also called multi-slope screens. They are designed for high capacity screening and widely utilized in aggregates production and in mining operations. Banana screens have found a lot use in coal processing, they are used for mineral recovery and scalping.
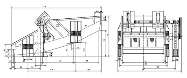
According to the different usage and capacity, LDHB banana screens have different screening area, sieve size, number of sieve segments and sieve inclination. There are single-layer and double -layer types, working area of 5.7m2 ~ 30.2m2, together 20 main models. It can basically meet the various needs of mine and coal selection plants.
The mineral materials(such as sand or coal) can be fed to the vibrating screen units through a belt conveyor, and washed with water on the screen, then complete the sieving operation under the vibration and gravity. The undersize material is transported to the dewatering screen through the water tank and chute for dewatering and fines recycling. At the same time, the gold sticking blanket or a magnetic separator can be laid to extract valuable components from the material and improve economic efficiency.
1)、The principle of equal-thickness screening is applied, and different vibration parameters, the number of segments and the inclination angle of the screen surface are adopted for different material characteristics. The inclination angle of the screen surface is too gentle, and the number of screen surface segments is 4~7, which can ensure the best screening process effect. At the same time, the gentle excessive inclination angle and the large number of segments are beneficial to the improvement of the life of the screen surface.
2)、 Vibrator: Adopt the world’s advanced JR type box vibrator (see the introduction of JR vibrator for details), splash lubrication and built-in lubricating oil channel ensure full lubrication of the bearing. The gear is a high-precision helical gear, and the bearing is dedicated for vibration equipment. The bearing and oil drain plug are magnetic, and the external organic plastic transparent oil mark can easily observe the oil level. Special measures are adopted to ensure that the bearings and gears work smoothly. The noise of the vibrator is lower than 75 decibels, and the bearing temperature is lower than 50 degrees.
3)、The beam of the exciter adopts a three-I-shaped beam structure, which overcomes the problem of poor stress of the middle square beam. It is equipped with a reinforcing rib plate, which has high rigidity and light weight, and it is treated with stress relief after welding.
4)、The lower beam supporting the screen surface adopts a special I-shaped beam, and the connection between the beam and the screen surface is a high-strength bolt connection, which avoids the problem of local stress concentration and low beam life caused by welding. At the same time, users can easily maintain the screen surface system.
5)、The cutting and drilling of the side plate are completed by a high-precision CNC lathe to ensure the accuracy. There is no welding seam on the side plate to avoid stress concentration on the side plate, thereby preventing the side plate from cracking.
6)、There are two ways to fix the screen surface, one is the middle rail seat type with polyurethane pressed wood at both ends, and the other is the middle pressure plate type with polyurethane pressed wood at both ends, which can be installed with polyurethane screen surface or stainless steel screen surface. Users can choose according to their needs, which is very flexible.
7)、The screen has a feeding box with sufficient strength, rigidity and length, it can prevent the impact of large pieces of material or the improper design of the feeding chute causing large pieces of material to fall directly into the screen surface, resulting in premature damage to the screen surface.
8)、The key components are connected by torsion shear type high-strength bolts, which are reliable in connection and easy to maintain.
9)、The main components are made of Q245R, which is a special steel for pressure vessels, with good impact toughness, cold bendability and weldability.
10)、Each screen is tested with no load for 8 hours before leaving the factory to ensure that every screen can operate safely and reliably
11)、Modular component design, high degree of generalization, easy for users to install and maintain; the screen surface can be mesh or plate screen surface, stainless steel or polyurethane screen surface according to the needs of different users;
12)、The steel spiral spring is adopted to reduce vibration and to minimize the dynamic load of the foundation.
| Single-layer | ||||
| Model | Layer Qty | Screen size(W*L) (m) | Screen Area(m²) | Segment Qty |
| JR1848 | 1 | 1.8×4.8 | 8.6 | 3 |
| JR1861 | 1 | 1.8×6.1 | 10.8 | 3 |
| JR2448 | 1 | 2.4×4.8 | 11.5 | 3 |
| JR2461 | 1 | 2.4×6.1 | 14.4 | 3 |
| JR2473 | 1 | 2.4×7.3 | 17.2 | 3 |
| JR2485 | 1 | 2.4×8.5 | 20.1 | 3 |
| JR3061 | 1 | 3.0×6.1 | 18 | 3 |
| JR3073 | 1 | 3.0×7.3 | 21.6 | 3 |
| JR3085 | 1 | 3.0×8.5 | 25.2 | 3 |
| JR3661 | 1 | 3.6×6.1 | 21.6 | 3 |
| JR3673 | 1 | 3.6×7.3 | 25.9 | 3 |
| Double-layer | ||||
| Model | Layer Qty | Screen size(W*L) (m) | Screen Area(m²) | Segment Qty |
| 2JR1861 | 2 | 1.8×6.1 | 10.8 | 3 |
| 2JR2461 | 2 | 2.4×6.1 | 14.4 | 3 |
| 2JR2473 | 2 | 2.4×7.3 | 17.2 | 3 |
| 2JR3061 | 2 | 3.0×6.1 | 18 | 3 |
| 2JR3073 | 2 | 3.0×7.3 | 21.6 | 3 |
| 2JR3661 | 2 | 3.6×6.1 | 21.6 | 5 |
| 2JR3673 | 2 | 3.6×7.3 | 25.9 | 3 |
Please write down your requirement and contact details in the following form. You can also send a message to us by this sales@lyldkj.com, we will reply to you within 24 hours.